全球网站

0769-86860520
您当前的位置:首页  »  技术与支持
技术与支持

大型全自动绕线机倾斜安装方法的改进

发布时间:2014-12-7 18:7:25  浏览:

   大型全自动绕线机的轴承采用端盖式滑动轴承,采用滑动轴承的绕线机必须水平放置,而现场的工作条件是绕线机安装面与水平成10°角。为保证绕线机在现有的工作条件下安全运行,借鉴立式绕线机的角接触球轴承背对背安装的结构形式,将转子轴向固定,角接触球轴承承受转子重力,同时改进滑动轴承的密封方式,防止润滑油泄露。采取的方案是:绕线机的轴伸端和非轴伸端仍采用滑动轴承不变,在绕线机滑环罩连接法兰处加两套背对背安装的角接触球轴承,用于承受一定的轴向力和径向力。

大型全自动绕线机

1、结构特点

    大型全自动绕线机由于转子重量大,轴承多采用端盖式滑动轴承。端盖式滑动轴承通过凸缘安装在绕线机分半端盖上,采用定位销定位。端盖式滑动轴承由轴承座、轴承盖、分半轴瓦、迷宫密封和在轴上自由旋转的润滑油环组成。滑动轴承与滚动轴承相比,具有无摩擦、温升低、振动小的优点。

端盖式滑动轴承的润滑方式为稀油润滑,绕线机运行时,复合润滑供油系统供油压力为0.01~0.06MPa,流量4~10L,润滑油进油温度保证在30℃~40℃。供油系统向滑动轴承内供油,油环旋转使轴与滑动轴承的轴瓦间隙内形成油膜,油膜产生一定的压力,使轴悬浮在滑动轴承的轴瓦中间,轴与轴瓦没有接触点,因而就没有摩擦,绕线机运行平稳,滑动轴承温升低,工作时间长。采用滑动轴承的绕线机工作时必须水平放置,与水平面不能有倾斜角,否则转子在绕线机径向力作用下发生倾斜,造成轴瓦与轴接触摩擦,滑动轴承温升急剧升高,将轴瓦毁坏,绕线机无法运行;同时绕线机倾斜很容易造成滑动轴承漏油、渗油的质量事故。

这种安装要求限制了滑动轴承的使用,而大型绕线机工作基准面与水平面往往成一定的倾斜角度,在这种使用条件下,多采用滚动轴承代替滑动轴承。由于转子自身重量大,滚动轴承承受着很大的轴向力和径向力,摩擦力增大,绕线机运行时很容易烧毁轴承。大型全自动绕线机现工作条件是绕线机安装面与水平面成10°角,滑动轴承在使用过程中出现漏油,用户要求对绕线机改造,保证绕线机在现有的工作条件下安全运行。

全自动绕线机电机装配图

2、绕线机整体结构

    绕线机机座为钢板焊接方箱式结构,机座内部空间大,为增加绕线机的整体刚度,提高其固有频率,降低电磁噪声,在机座内即铁心中间位置增加一道环筋板。定子冲片为整圆冲片,定子铁心采用外压装的方式压入机座。定子的接线为1路Y接,定子出线在轴伸端,出线电缆通过定子筋与机座环筋板的空隙引入主电源接线盒。转子绕组为双层波绕组,接法为Y接,转子线圈为插入式硬绕组线圈。滑环装置热套在绕线机轴上,为了避免滑环碳刷与滑环圈摩擦产生的碳灰影响绕线机性能,通常将滑环罩和滑环装置安装在绕线机的非轴伸端。转子不带内风扇,绕线机内轴伸端和非轴伸端各安装一个玻璃钢挡风板,挡风板固定在定子筋上。

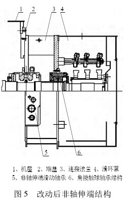
    滑环装配的防护等级为IP23,绕线机非轴伸端的端盖与滑环罩通过法兰连接,法兰端面均匀分布三个圆钢,滑环刷架固定在法兰上,法兰与轴之间安装盖板,盖板与轴间隙10mm。绕线机非轴伸端结构见图2。

 全自动绕线机结构

4改进措施

    绕线机轴伸端和非轴伸端仍采用滑动轴承,在滑环罩与法兰连接处背靠背安装一对角接触轴承,同时对滑动轴承的密封方式进行改进。利用绕线式绕线机滑环罩通过连接法兰与绕线机非轴伸端的端盖连接的结构特点,取消盖板,在滑环罩与法兰连接的端板上安装轴承套,背对背安装一对角接触球轴承,绕线机主轴承仍采用端盖式滑动轴承。

滑动轴承轴台与角接触球轴承之间热套挡圈,挡圈与轴为过盈配合,用于固定角接触球轴承的轴承内套。在角接触球轴承后面用挡圈、止动垫圈、止动螺母轴向固定角接触球轴承,角接触球轴承的轴承外套用轴承内盖和轴承外盖固定。轴承内、外盖材料均采用Q235 A钢板,以增加强度,轴承内盖、轴承外盖安装骨架密封圈用于轴承润滑脂的密封。由于角接触球轴承能承受轴向力和一定的径向力,绕线机倾斜产生的径向力由角接触球轴承承受,滑动轴承不承受径向力,轴向方向由角接触球轴承固定,滑动轴承可正常运行。滑环罩背对背安装角接触球轴承结构见图3所示。

全自动绕线机滑动轴承

    绕线机运行时,冷却气流循环使绕线机内部形成负压,滑动轴承内部的润滑油很容易透过轴承内部的油密装置,渗漏到绕线机内部,造成定子线圈绝缘层的破坏。在滑动轴承内盖加工两道深度为13mm的环形凹槽,在轴承内盖外部安装迷宫环,迷宫环齿嵌入到槽内,与凹槽径向间隙lmm,形成一系列截流间隙与膨胀空腔。迷宫环与轴承盖材质相同,与轴过盈配合。电动机运转时,迷宫环与轴同步旋转,迷宫环齿在轴承内盖凹槽内旋转,在内盖与轴配合面处形成旋转密封气流,外部的有害物质及轴承内的润滑油在通过曲折迷宫的间隙时,产生节流效应,从而达到防渗透、防泄漏的目的。由于是空气密封,没有固体零件的相擦,没有密封件间的摩擦生热,也不会由于密封件间的摩擦而使密封失效,所以防护可靠。改进后的滑动轴承结构见图4。改动后的非轴伸端结构见图5。

全自动绕线机滑动轴承改动后全自动绕线机滑动轴承

    这种新型轴承安装方式,很好地解决了大型绕线机工作基准面不水平的难题,扩大了滑动轴承的使用范围,滑动轴承漏油故障明显减少。经改进后,绕线机运行正常,满足了用户要求。

  相关信息
esm

返回首页 | 网站地图 | 联系我们 | 邮箱登陆

©2001- 安博(中国) . 粤ICP备19119446号-1